Vorige | Volgende

Gouden Leeuw 721 Amsterdam

Bewaar object
Deze woning is verkocht

Omschrijving

Ruimtelijk 2 kamer appartement van ca. 53m² in appartementencomplex 'Gouden Leeuw' (Gemeentelijk monument) met huismeester. Het appartement bevindt zich op de 4de etage en beschikt over een balkon met uitzicht over het nabijgelegen park. Gouden Leeuw ligt nabij het winkelcentrum 'Ganzenpoort' met markt op zaterdag, de Amsterdamse Poort en de Arena Boulevard met de Pathé bioscoop, Villa Arena, JC stadion en veel meer.

Gebruiksoppervlakten:
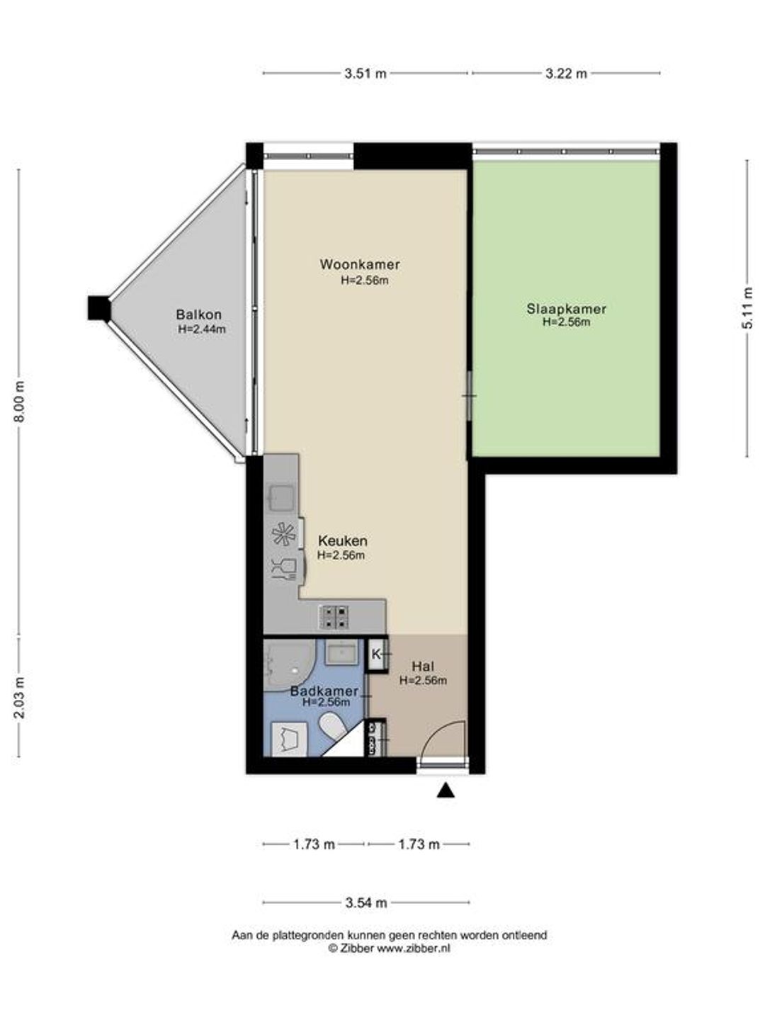
Wonen: ca. 53 m²
Gebouw gebonden buitenruimte: ca. 6 m² (balkon)

Globale indeling:
Via de lift of trap kom je op de 4e etage. Je komt direct binnen in de ruime woonkamer, volledig voorzien van een lichte laminaatvloer. Door de grote ramen is er veel lichtinval en geeft het geheel een ruimtelijk gevoel. De open keuken bestaat uit een groot werkblad, veel bergruimte en bovenkastjes. Bovendien is deze voorzien van koelkast, vaatwasmachine en 4-pits gasstel. Vanuit de woonkamer kom je in de royale slaapkamer, die ook beschikt over dezelfde lichte laminaatvloer en een extra kabelaansluiting. Via de dubbele schuifpui in de woonkamer is er toegang tot het balkon op het zuidoosten met uitzicht over het nabijgelegen park. De badkamer is betegeld en beschikt over een zwevend toilet, een bad meubel, een regendouchecabine en een wasmachine aansluiting. De badkamer heeft her en der wat aandacht nodig. Het appartement beschikt over een gezamenlijke berging en fietsenstalling op de begane grond.

Bijzonderheden:
* De oppervlakte is officieel ingemeten volgens BBMI (Branche Brede Meet Instructie, afgeleide van NEN 2580)
* Er is een 'Ouderdomsclausule' en een 'Niet-zelf bewoningsclausule' van toepassing (in verband met een nalatenschap)
* Erfpacht € 215,- per jaar vast tot 1 april 2024
* Servicekosten € 196,33 per maand voor opstalverzekering, glasverzekering, huismeester, schoonmaak algemene ruimten, liftonderhoud en reservering groot onderhoud
* Voorschot € 272,73,- per maand voor stookkosten en warm water
* Gemeenschappelijke berging en fietsenstalling op de begane grond
* Aanwijzing gemeentelijk monument

Ligging:
Het goed onderhouden appartementencomplex 'Gouden Leeuw' is gelegen in een mooi aangelegd park. In het complex zelf bevinden zich ateliers en binnen-tuintjes. Daarnaast zijn er diverse faciliteiten waaronder grand café, sportfaciliteiten, kinderdagverblijf en huismeester.
Het complex beschikt over voldoende gratis parkeergelegenheid (in de garage met vergunning) en het appartement is te bereiken via een beveiligde en overdekte binnenstraat. Alle appartementen beschikken over blokverwarming en een centrale warmwatervoorziening.
De ligging is ideaal t.o.v. winkelcentra, openbaar vervoer, scholen en uitvalswegen. Ook snelwegen als de A1, A9 en A10 zijn vlakbij.
Lees de volledige omschrijving

Kenmerken

Overdracht

Aanvaarding
in overleg

Bouw

Soort woning
bovenwoning
Type woning
bovenwoning
Soort bouw
bestaande bouw
Bouwjaar
1974
In aanbouw
nee

Details

Open portiek
nee
Permanente bewoning
ja

Oppervlakten en inhoud

Woonoppervlakte
53 m²
Inhoud
174 m³

Indeling

Aantal kamers
2
Aantal slaapkamers
1
Aantal woonlagen
1
Aantal etages
1
Aantal badkamers
1
Badkamervoorzieningen
douche, toilet, wasmachineaansluiting, wastafel
Keuken type
open keuken

Isolatie en verwarming

Isolatievormen
muurisolatie, vloerisolatie
Soort verwarming
blokverwarming
Warmwater installatie
centrale voorziening

Energielabel

Energielabel
C
Einddatum energielabel
2032-07-07

Kadastrale gegevens

Kadastrale aanduiding
Weesperkarspel L 68
Eigendomssituatie
erfpacht
Kadastrale aanduiding
Weesperkarspel L 68
Eigendomssituatie
erfpacht

Buitenruimte

Tuintype(n)
geen tuin
Hoofdtuin achterom
nee

Garage

Garagesoorten
geen garage

Parkeergelegenheid

Faciliteit
openbaar parkeren

Schuur/berging

Aantal
1
Soort
inpandig

VVE informatie

Appartement bijdrage
197
Periodieke bijdrage
ja
Reservefonds
ja
Vergadering
ja
Onderhoudsverwachting
ja
Opstalverzekering
ja
Inschrijving KvK
ja
Bekijk alle kenmerken

Alle foto's

Kaart Gouden Leeuw 721 Amsterdam

naar Gouden Leeuw 721 Amsterdam
Op 5 minuten loopafstand Op 5 minuten fietsafstand

Deel dit object